Potongan Kolam Renang Lantai 2
Biaya bangun rumah minimalis 2 lantai dengan kolam renang 2020.

Potongan kolam renang lantai 2. Jasa desain dan pembangunan rumah tinggal bangun baru renovasi ruko kantor pekerjaan interior kolam renang pekerjaan kayu dan pekerjaan pembangunan perumahan developer. Gambar kerja bistek rumah tinggal minimalis 2 lantai. Admin blog sekitar rumah 2019 juga mengumpulkan gambar gambar lainnya terkait denah rumah 2 lantai beserta tampak dan potongan dibawah ini. Gambar dibawah ini mencakup gambar arsitekturmekanikal elektrikal dan detail.
Recent posts desain rumah 2 lantai ber atap rooftop dilahan 10 x 12 m2. Kolam renang dapat diartikan sebagai tempat dimana orang bisa melakukan suatu kegiatan mandi atau membersihkan badan baik yang bertujuan untuk olah raga maupun hanya sekedar mencari kesenangan. Sebab membuat kolam renang bukan hanya tentang menggali tanah meletakkan ubin lalu tinggal mengisinya dengan air. Tak lupa desain rumah 2 lantai yang berbentuk kotak memanjang juga semakin menguatkan kesah mewah tersebut.
Untuk lebih mudahnya kami akan memberikan contoh hitungan real nyata dari bangunan yang kami ambil dari projek portofolio desain asia arsitek yang telah masuk keproses pembangunan. Model rumah dengan area balkon yang luas. No anda butuh perencanaan detail agar semua itu bisa berjalan dengan lancar. Berbagai macam kolam dibuat orang dan dilengkapi dengan fasilitas dan perlengkapan lainnya berdasarkan arsitekstur dan konstruksi yang memadai.
Membangun kolam renang perlu direncanakan dengan baik dan sematang mungkin. Keberadaan kolam renang di lantai atas atau yang sering disebut roof pool memiliki daya tarik tersendiri bagi pemiliknyaalasan yang sering mucnul dari banyak orang saat memutuskan untuk membuat kolam renang di lantai dua adalah luas lahan di lantai 1 yang tidak memadai. Desain rumah klasik 15 x 20 m2 dua lantai ada kolam renang. Ide desain kolam renang di lantai 2 dan keuntungan memilikinya.
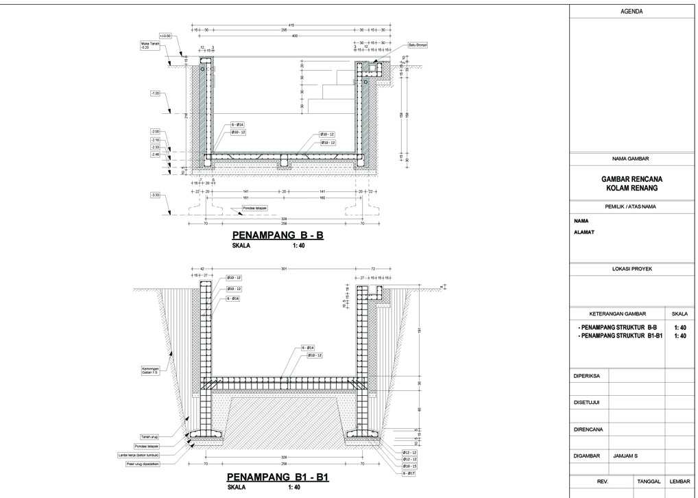
Detail potongan pondasi kolam renang. Jika kamu memiliki lahan luas kamu bisa membangun kolam renang pribadi yang disulap menjadi kolam renang mewah dengan dipadukan adanya kursi kursi pantai di sepanjang pinggir kolam. Gambar rumah tinggal 2 lantai dengan kolam renang gambar perencanaan. Kalau dulu rumah dipakai sebagai tempat perlindungan dari perubahan cuaca serta untuk menghindari diri dari terjangan hewan buas kegunaan rumah pada zaman sekarang ini buat tempat peristirahatan setelah selesai melakukan bermacam aktifitas di luar dan juga dijadikan sebagai.
Desain rumah minimalis 2 lantai ada kolam renang hunian yakni hal utama yang sangat diperlukan untuk seluruh keluarga.











































































